Neubau-Büro-/Lagerflächen in Gräfelfing
Neu in der Vermietung
Beschreibung
Details
| Objekt ID: | AKG9181 |
| Verfügbar ab: | sofort |
| Miete: | ab 22,90/m² EUR |
| Lage: | Gewerbegebiet Gräfelfing |
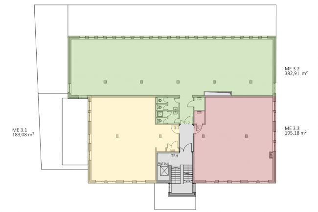
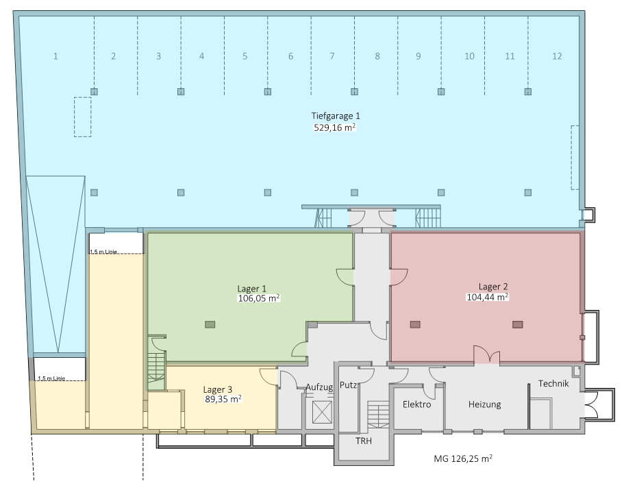
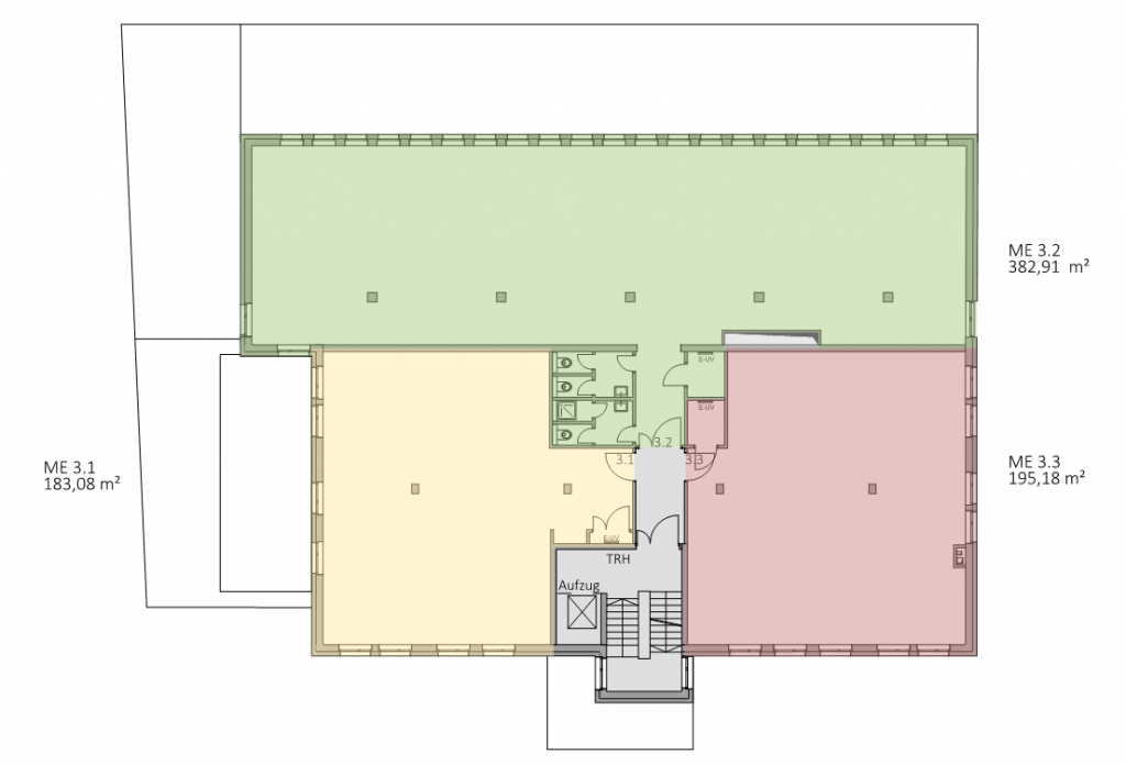
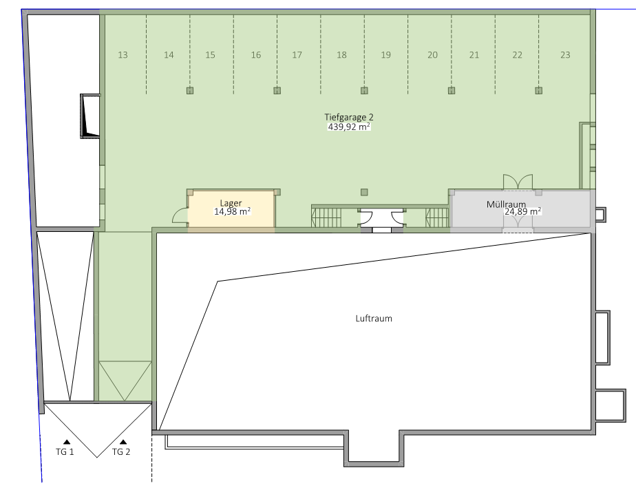
| Gesamtfläche: | 150 - 2.000m² |
| Baujahr: | 2025 |
| Objektzustand: | Erstbezug |
| Ausstattungskategorie: | gehoben |
Energiedaten
Merkmale
Durch die Nutzung von Google Maps können Userdaten an einen Server von Google in den USA übertragen und dort gespeichert werden. Bitte beachten Sie dazu auch unsere Datenschutzerklärung.













